서울시, 공공주택 가이드라인으로 활용할 ‘쪽방촌 업그레이드’안 발표
최저주거기준 겨우 면한 기준, ‘인간다운 삶’ 가능한가?
지난 11월 19일 서울시 주택건축본부 건축기획과에서 ‘서울시, 전국 최초 ‘최후의 주거전선’ 쪽방촌 업그레이드 위한 평면 개발’이라는 보도자료를 발표했다. 서울시는 발표한 표준 평면안에 대해 쪽방 거주민의 생활특성과 쪽방의 공간·환경적 제약 등을 통합적으로 고려한 맞춤형 주거모델이라며, 이를 쪽방 정비사업의 공공주택 가이드라인으로 활용할 계획이라고 밝혔다. 서울시가 발표한 표준평면안은 총 3가지로 아래와 같다.
최저주거기준 겨우 면한 주택에서 인간다운 삶 가능한가
서울시는 모든 표준평면 유형을 「주거기본법」에 따른 ‘최저주거기준’인 14㎡(4.2평) 이상으로 계획하여 인간다운 삶이 최우선 될 수 있도록 한다고 한다. 발표된 1인가구 기준안은 주방이 제외된 14㎡와 주방을 포함한 15㎡(4.5평)형으로 최저주거기준을 겨우 충족한 수준이다. 이는 쪽방촌 공공주택 사업계획 발표 당시 제시한 16㎡(4.8평)에서조차 후퇴된 안으로, 현재 거주 중인 쪽방보다 넓긴 하지만 ‘영구주택’으로 제공된다는 점을 고려했을 때 평생 거주할 쾌적한 주택으로 보기에는 매우 무리가 있다.
거동이 불편하고 취약한 쪽방 거주자들의 상황을 고려하여 모든 공간을 무장애 디자인으로 적용한다고 했지만, 지나치게 협소한 공간 탓에 휠체어조차 들여놓을 수 없다. 물건 놓을 곳이 없어 쪽방 벽에 선반을 주렁주렁 달아야 하던 것이 수납형 침대로 바뀔 뿐이다.
또, 현행 최저주거기준은 면적에 대한 기준만 있을 뿐 주택의 필수적인 기능들에 대해 고려하지는 않고 있다. 이는 제시된 표준평면안도 마찬가지인데 주택 공간에서 침실, 주방, 거실이 하는 기능은 각각 다름에도 불구하고 전혀 기능적으로 분리되지 않은 원룸형으로 설계되어 있다. 이 또한 가난하다는 이유로 수면과 취사, 일상생활을 모두 쪽방 한 칸에서 해결해야 했던 이전과 무엇이 달라지는 것인지 의문이다. 이는 결국 최대한 좁은 공간에 밀집시켜 비용을 절감하기 위한 방안에 지나지 않는다.
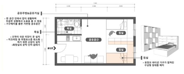
자발적인 공유가 아닌 공유는 강요
1인실 15㎡형을 제외한 모든 표준평면은 ‘공유’를 기본으로 하고 있다. 주택공간 공유가 필요한 유형에 관해 서술한 서울시의 표현을 보면 이들이 갖고 있는 쪽방 주민에 대한 편견이 고스란히 드러난다. 다인실의 경우 ‘다른 이들과 함께 지내면서 관리와 자극을 받을 수 있도록’ 화장실·주방·거실 등을 공유하도록 구성했고, 특성화실의 경우 ‘스스로 생계유지가 어렵기 때문’에 관리자, 보호자가 함께 거주하며 도움을 받을 수 있도록 공유형으로 구성했다고 한다. 이는 쪽방 주민들을 관리와 감시, 도움 없이 독립생활을 유지하기 힘든 이들로 규정하는 것이다.
공유는 자신이 원할 때 하는 것이 공유이다. 원해서 하는 공유가 아닌 설계에 의해, 건물 구조에 의해 하는 공유는 강요일 뿐이다. 서울시는 쪽방 거주자들에게 현재 쪽방보단 나은 곳이니 사적 공간을 공유할 것을 강요하고 있다.
쪽방지역에 필요한 주택은 자의적으로 선택하지 않은 이와 강제로 공유해야 하는 ‘다인실’이 아니다. 혈연이나 혼인관계로 성립되는 보수적인 가족이 아닌 자신이 선택한 가족과 함께 살 수 있도록 제공되는 다양한 평형의 주택이다. 쪽방촌 주민들이 타인과 함께 사는 것을 선택한다면 이는 ‘관리나 자극’을 위해서가 아니라 여느 사람들과 마찬가지로 서로 마음을 의지하고 삶을 나누기 위해서일 것이다. 쪽방의 물리적 제약으로 인해 이미 서로 의지하며 가족같이 사는 이들이 각자의 방에 살고 있다. 이런 이들이 가족을 이루어 살 수 있도록 다양한 형태의 가족을 인정하고, 다양한 형태의 주택 선택 옵션을 제공하면 될 일이다.
특성화실 또한 굳이 필요하지 않은 개념이다. 독립생활에 필요한 보조를 받기 위해 활동지원사 제도가 있고, 요양보호사가 있고, 지원주택이라는 형태가 있다. 기존에 존재하는 제도의 적극적인 확대와 활용은 염두에 두지 않고 새로운 모델 발표를 통한 성과 챙기기에 급급해 보인다. 특히 함께 거주할 관리자, 보호자란 어떤 사람을 지칭하는지, 결국 ‘준시설’같은 형태는 아닌지 크게 우려된다.
진짜 ‘쪽방촌 업그레이드’ 하려면 집다운 집을 제공하라
서울시는 쪽방촌 거주자들을 같은 시민으로 고려하지 않는가. 그렇지 않고서야 ‘집’을 요구하는데 집답지 못한 안을 내놓으며 ‘전국 최초’라느니 ‘업그레이드’라느니 하는 수식어를 붙이는 것은 말이 되지 않는다. 본 안을 만든 이들에게 묻고 싶다. 본 안에 있는 집이 당신도 살고 싶은 집인가? 서울시는 다시 한번 원점으로 돌아가 어떤 주택이 집다운 집인지, 어떤 주택의 공급이 필요한지 고민하길 바란다.
*필자 소개 _ 윤애숙 빈곤사회연대 활동가. 2020 홈리스 주거팀.

